Condensate Drain Box
Condensate Drain Box
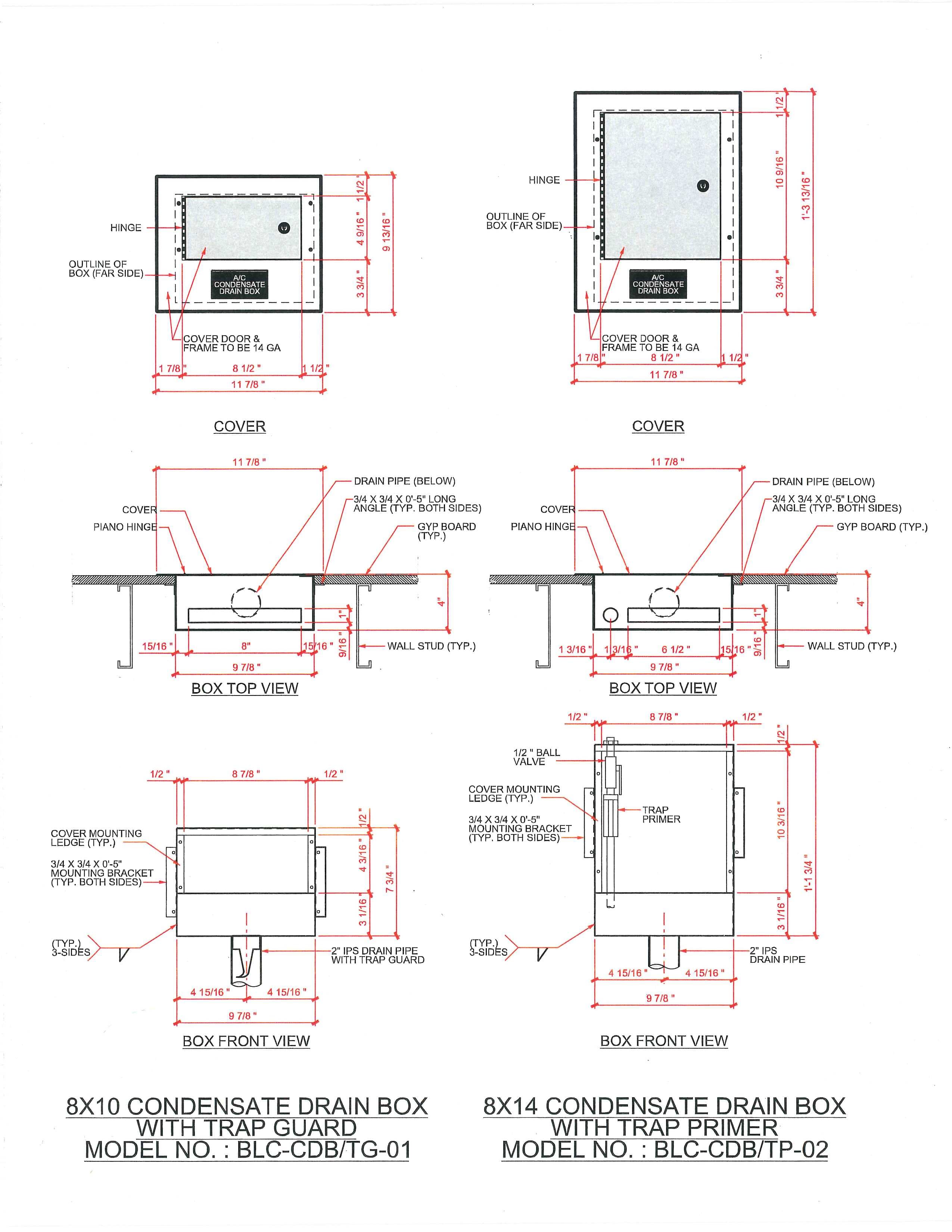
The BLC Condensate Drain Box is designed to collect and drain condensate from HVAC systems.

Condensate Drain Box

Condensate Drain Box Detail

The BLC Condensate Drain Box is designed to collect and drain condensate from HVAC systems.


